INTERVIEW WITH THE CLIENT施主様インタビュー
I様邸/熊本市東区
アメリカンバーの様な、趣味であふれるクレアブルーの家
- 輸入住宅
旦那の趣味に対しては“月いくらまで”と決めていますが、
毎日きつい仕事を頑張ってくれているので、そこは我慢させません。

Case Studies #08
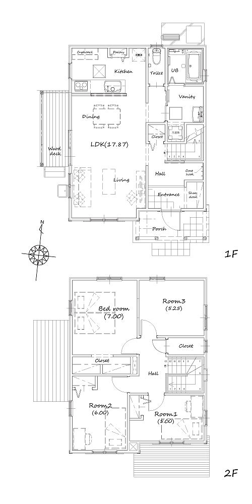
お客様情報-
家族構成:夫婦/20代
1階:50.72 ㎡
2階:50.72 ㎡
延べ床面積:101.44 ㎡(30.68 坪)
施工面積:
- Q以前のお住まいでの悩みは?
- 『生活音が気になる・・・』
以前は賃貸アパートに住んでおり、生活音を気にかけながら過ごしていました。
“自分たちの音”も“周りの音”も・・・
この悩みがきっかけで家づくりについて考え始めました。
- Q住み心地はいかがですか?
- まだ1ヶ月しか経っていないので、あまり実感が湧きませんが、
家の中にいると外の音が全然聞こえない事に驚きました!
“うるさくしても近所に迷惑にならない”
ということが、賃貸の時と比べ一番変わった所ですね!
今では、快適に過ごすことが出来ています。
- Qセルコホームを選んだ理由は?
- 完全に旦那の趣味です。(と、奥様)
アンティーク雑貨やカフェのような雰囲気が好きで・・
家を買うと決めたのも自分で、妻や両親には事後報告でした。
内装を決める際は、水廻りは妻が、それ以外は自分が決めました。
とても優柔不断なのですが、
担当の藤井さん(インテリアコーディネーター)が
私たちの好みに合わせて、パッと提案してくれたので大変助かりました。
- Q家づくりの際、悩んだことはありますか?
- 特にありませんでした。
よく聞く、コンセントの位置も間取りも悩みませんでした。
セルコホームの場合、提案される間取りが何パターンかあって、
その中から選ぶ感じだったので。
- Qお家のこだわりは?
- 「クロス(壁紙)」です。
特にリビング。
リビングの雑貨は、専門店やネット、古着屋で見つけます。
ここに飾ってあるだけではなく、物置にもたくさんあるので、
飾ってみて、「なんか違うかな?」となったら入れ替えて・・・(笑)
アルコールは飲めませんが、
かっこいいのでダイニングに並べています(笑)
「趣味部屋」もあります。
大好きなアメコミのフィギアを全部並べたり、ギターを置いたり。
賃貸の時はできなかった趣味を満喫しています♪

Catalog Requestカタログ請求
-

- T-ROOF CONCEPT BOOK
-
実質光熱費0円の太陽光パネル標準装備「T-ROOF」コンセプトブックです。
充実した性能と平屋風二階建ての暮らしやすさを実現しました。
-

- T-BOX CONCEPT BOOK
-
無駄を省いたスタイリッシュなTAKASUGIニューブランド「T-BOX」のコンセプトブックです。このブランドの仕様や叶えるライフスタイルがわかります!
-

- ~居彩~コンセプトブック
-
心地良い家は理由がある。その理由が一冊でわかる居彩コンセプトブックです。和風だけど新しい、そんな家が好みの方には特におすすめの一冊です。
-

- ~リビエ~コンセプトブック
-
TAKASUGIの「こだわりの仕様」が全て詰まったリビエ。
創業以来、多くのお客様から支持されている信頼のブランドです。
-

- selco style
-
セルコホームの輸入住宅実例集です。
お施主様のこだわりのポイントなど参考にされてください。
分譲地・建売住宅・注文住宅に関するお問い合わせ・お見積り等、お気軽にご相談ください。
お電話でのお問い合わせは、お近くの各事業所までご連絡ください。(お電話受付時間/9:00~18:00 ※火・水曜日定休)
















